Limburg. Etwa 90 Personen waren zur Bürgerversammlung in das Bürgerhaus nach Eschhofen gekommen. Darunter Mitglieder der Limburger Feuerwehren, Anwohner, Schausteller und Politiker der unterschiedlichen Parteien ...

Denn es drehte sich an diesem Abend um den neuen Standort der Limburger Feuerwehr.

Nach der Begrüßung und Vorstellung der Anwesenden sowie der geplanten Agenda durch den Stadtverordnetenvorsteher Stefan Muth übergab dieser an Michael Stanke, Dezernent der Limburger Feuerwehr.

Er stellte die Ausgangslage vor, die sich nach dem Bedarfs- und Entwicklungsplan für die Feuerwehr Limburg richtet. Dieser ist für zehn Jahre gesetzlich vorgeschrieben und wurde bereits politisch beschlossen. Inhaltlich ist darin beispielsweise festgelegt, welche Einsatzfahrzeuge für eine Stadt in der Größe von Limburg und den Gegebenheiten (Altstadt, Lahn, Krankenhaus, Gewerbegebiete …) zur Verfügung stehen müssen.

Kriterien, die bei der Standortauswahl berücksichtig werden mussten, sind neben der Anzahl der notwendigen Feuerwehrfahrzeuge – aktuell 22 gefordert, 27 – auch die Ausrückzeit. Die Feuerwehr muss bei einer Alarmierung im Stadtkern alles in einer Fahrtzeit von 5 Minuten erreichen können. Hinzu kommt die Anrückzeit bei einer Freiwilligen Feuerwehr. Hierbei geht es um die Zeit, die einzelne Mitglieder der Feuerwehr von ihrer Heimatadresse oder ihrem beruflichen Standort bis zur Feuerwehrzentrale benötigen. Das sind in der Regel fünf Minuten.

Alarmierungszeit schränkt Suche ein

„Die gesetzliche Vorgabe ist, dass spätestens 10 Minuten nach der Alarmierung wirksame Hilfe eingeleitet wird. Diese Zeit setzt sich aus der sogenannten Anrückzeit der freiwilligen Feuerwehrleute zur Feuerwache und der Fahrtzeit der Einsatzfahrzeuge von der Feuerwache zur Einsatzstelle zusammen“, erörtert Stanke.

Das schränkte das Suchgebiet im Hinblick auf Grundstücke mit ausreichender Größe bereits deutlich ein. Denn das mit der Machbarkeitsstudie beauftragte Architekturbüro aus Darmstadt ermittelte nach dem Bedarfs- und Entwicklungsplan eine erforderliche Grundfläche von etwa 8000 Quadratmetern. Aus diesem Grund kam, so teilte Dr. Lengfeld den Anwesenden mit, auch das Bestandsgrundstück nicht in Frage. Dieses umfasst eine Fläche von 6.186 Quadratmetern. Auch der Vorschlag aus der Stadtverordnetenversammlung, einer „Verschwenkung“ der Ste-Foy-Straße, also eine leichte „Kurve“ Richtung Marktplatz in die schnurgerade Straße zu bauen, hätte nur einen nutzbaren Zuwachs zum Bestandsgrundstück der Feuerwehr von etwa 1000 Quadratmetern gebracht. Dagegen spricht außerdem, dass die Straße dann nicht mehr für längere Fahrzeuge passierbar wäre.

Der Vorschlag einer Südstadtwache, also die Verlagerung verschiedener Fahrzeuge der Feuerwehr nach Blumenrod ist ebenfalls nicht umsetzbar. Dem stehen die vorgesehenen fünf Minuten Fahrtzeit zu Zielen in der Kernstadt im Weg. Diese sind in dieser Zeitspanne nicht erreichbar.

Ausreichend große Grundstücke in Privatbesitz scheiterten mangels Verkaufsbereitschaft. Auch Richtung Staffel wurden Flächen geprüft. Diese befinden sich jedoch im Überschwemmungsgebiet der Lahn.

Somit blieb nach Prüfung aller anderen Varianten nur noch der Marktplatz. Dieser bietet mit einer Gesamtfläche von fast 22.000 Quadratmetern nach der Machbarkeitsstudie ausreichend Platz für die neue Feuerwehrzentrale. Das beauftrage Architekturbüro, vertreten durch Professor Mathias Lengfeld und Christoph Kelber stellte das Ergebnis ihrer Machbarkeitsstudie der Bürgerversammlung vor.

„Unser Ziel war es, dass Gebäude der Feuerwehr so auf dem Marktplatz zu integrieren, dass eine gute zusammenhängende Fläche entsteht, die für Veranstaltungszwecke nutzbar bleibt“, erklärt Lengfeld. Zwar hätten sie versucht, die alte Wache umzuplanen, die Grundfläche sei dafür nicht ausgereichend groß, und die baulichen Gegebenheiten sprächen ebenfalls dagegen.

Grundrissplan so schmal wie möglich

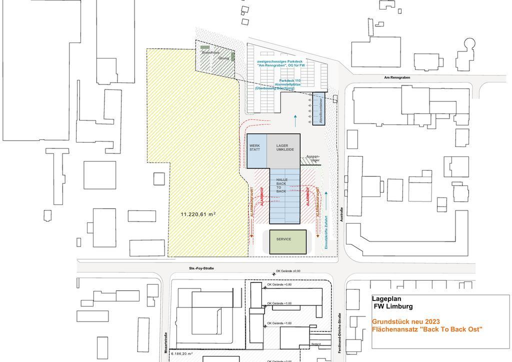
Geplant wurde nun ein Grundriss, der sich im 90 Grad Winkel zur Ste.-Foy-Straße befindet. Im ersten Gebäude soll der Servicebereich mit Schlauchpflege und Atemschutzwerkstatt untergebracht werden. Dahinter befindet sich die Fahrzeughalle, in der die Einsatzfahrzeuge „back to back“ gestellt werden und damit das Gebäude so schmal wie möglich gebaut werden kann. Im Falle eines Einsatzes können die Fahrzeuge von beiden Seiten auf die Ste.-Foy-Straße auffahren. Da für die freiwilligen Feuerwehrleute auch Parkplätze zur Verfügung gestellt werden müssen, wird Richtung Renngraben eine zweigeschossige Parkpalette errichtet. Die Zufahrt in die erste Etage erfolgt über den Renngraben. Dort stehen der Allgemeinheit dann etwa 80-100 Parkplätze zur Verfügung. Das obere Parkdeck mit 110 Parkplätzen ist den Einsatzkräften vorbehalten. Hier erfolgt die Zufahrt über die Ste.-Foy-Straße. Der Zugang in die Feuerwache ist direkt über das obere Parkdeck möglich.

Vor der Parkpalette befinden sich „Abrollcontainer“ für sogenannte Wechsellader-Einsatzfahrzeuge, die für bestimmte Gefahrensituationen benötigt werden. Auch Übungsflächen, deren Größe genau festgelegt ist, sind im hinteren Teil des Marktplatzes eingeplant. Es ist auch eine obere Etage mit diversen Räumlichkeiten geplant, diese haben jedoch keinen Einfluss die weiteren Nutzungsmöglichkeiten des Platzes für Veranstaltungen.

 Übersichtsgrundriss aus der Machbarkeitsstudie des Architektenbüros aus Darmstadt.
Bild:
Übersichtsgrundriss aus der Machbarkeitsstudie des Architektenbüros aus Darmstadt.

Dr. Marius Hahn, Bürgermeister der Stadt Limburg, stellte im Anschluss gemeinsam mit Ulrich Wolf vom Amt für Stadtmarketing vor, wie die verbleibenden 11.200 Quadratmeter für Veranstaltungen genutzt werden können.

„Wir haben uns die Entscheidungsfindung nicht leicht gemacht und im großen Radius nach einer Ausweichfläche gesucht“, zeigt Hahn auf. So wurde die Lahnkampfbahn als Austragungsort für das Oktoberfest und andere Großveranstaltungen ins Auge gefasst und ebenso verworfen wie eine Fläche im ICE-Gebiet, die Investitionen im zweistelligen Millionenbereich erfordert hätte. Also wurde die bestehende Restfläche des Marktplatzes maßstabsgetreu mit den üblichen Fahrgeschäften bestückt. Ganz ohne „zeitliche Leihgabe“ und Verkehrseinschränkungen wird das Fest jedoch nicht veranstaltet werden können. Denn die EVL müsste ihr jetziges Rohrlager temporär für ein großes Zelt zur Verfügung stellen und die Ste.-Foy-Straße zwischen Austraße und Mozartstraße für das Riesenrad und weitere Schaustellergeschäfte etwa zwölf Tage gesperrt werden. Auch das alte Gelände der Feuerwehr würde hierbei mitgenutzt werden.

Markplatz wird sich verändern

Klar ist, die Markthallen sind mit dem Bau des Feuerwehrhauses Geschichte. Diese würden nahezu press an press mit den Feuerwehrgebäuden stehen. Keinen Platz auf dem Festplatz hätte dann die Achterbahn „Wilde Maus“ mehr. Dies wäre jedoch das einzige Fahrgeschäft, das auf dem Oktoberfest fehlen würde.

Ob ein großer Zirkus noch auf dem Festplatz gastieren könnte, ist ebenfalls zu fraglich. Einen Vorteil würde der neue Standort der Feuerwehr auf dem Marktplatz für die Anwohner mit sich bringen: Durch die sogenannte Riegelbebauung entsteht weniger Lärm und Schmutz für sie während der Veranstaltungen.

Hahn bezeichnete die Machbarkeitsstudie als guten Kompromiss: „Wir haben zwei Dinge erreicht, wir haben einen zukunftsfähigen Platz für die Feuerwehr gefunden, aber auch weiterhin die Möglichkeit, Feste und Messen durchzuführen.“

Nun kamen die anwesenden Zuhörer zu Wort und konnten Fragen stellen. Unter anderem war eine Frage, wieso eine Feuerwehrzufahrt während des Oktoberfestes mit Ständen zugestellt wird. Dies stellt kein Sicherheitsrisiko dar, da die Feuerwehr die Fahrzeuge so positionieren kann, dass über die andere Ausfahrt ausgefahren werden kann. Des Weiteren gibt es zwischen den Gebäuden genug Platz, um mit den Fahrzeugen hindurchzufahren. Auch die erfolgten Bodenuntersuchungen wurden thematisiert. Diese ergab, dass keine Bedenken bei einer bodengleichen Bebauung bestehen, jedoch eine Baubegleitung als sinnvoll erachtet wird. Schausteller Oliver Baccari merkte an, dass er mit dem gefundenen Kompromiss zufrieden ist, schätzt jedoch, dass das Aufstellen eines Zeltes auf dem Platz alternativ zur Markthalle mit höheren Kosten einhergeht. Frank König (FDP) regte an, dass auf dem Platz eine WC-Anlage installiert werden könnte – dem schloss sich auch Carmen von Fischke, Gleichstellungsbeauftragte der Stadt an und bat, an Frauenparkplätze zu denken. Die Besorgnis, dass das Oktoberfest während der Bauphase ausfallen könnte, konnte Hilmar von Schenck, Leiter des Amts für Stadtmarketing, Tourismus und Wirtschaftsförderung, jedoch zerstreuen. Die Bauphase würde sich zwar auf deutlich über ein Jahr erstrecken, aber das Oktoberfest finde statt, meinte er.

Marion Schardt-Sauer (FDP) wollte wissen, ob es möglich wäre, das Übungsgelände der Feuerwehr in der Südstadt anzusiedeln. Diese Flächen sind jedoch bereits für das Deutsche-Rote-Kreuz im Gespräch. Außerdem würde der Weg von dem Übungsplatz im Falle eines zeitgleichen Einsatzes erneut um wertvolle Minuten verlängert.

Peter Rompf (SPD) schloss die Fragerunde mit den Worten: „Das ist ein Kompromiss, mit dem man leben kann. Detailfragen können und müssen nachfolgend geklärt werden“.

 So könnte das Oktoberfest zukünftig neben der Feuerwehr auf dem Marktplatz stattfinden.
Bild:
So könnte das Oktoberfest zukünftig neben der Feuerwehr auf dem Marktplatz stattfinden. .

logo wittich beselichHinweis: Verwendung der Artikel mit freundlicher Genehmigung der Wittich Verlage KG, Höhr-Grenzhausen.

 

 


Zurück